Trilocale in vendita

Milano, Via Francesco Predabissi - Casoretto
€ 389.000
80 Mq 80 Mq
1 bagno 1 bagno

Trilocale in vendita

Milano, Via Francesco Predabissi - Casoretto

Descrizione annuncio

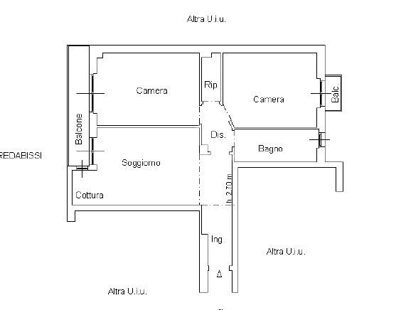
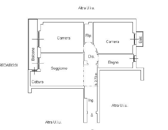
A 350 metri da MM Pasteur- Via Predabissi 3- in Stabile civile ottimamente tenuto in tutte le sue parti comuni, con servizio di portineria full time, Panoramico Trilocale completamente ristrutturato sito al quinto piano con ascensore, con ingresso su ampio disimpegno, soggiorno con cucina a vista ed ampio balcone, 2 ampie camere matrimoniali entrambe con balcone, bagno finestrato, ripostiglio ed annesso vano ad uso cantina. La posizione ed il piano rendono l' immobile luminoso. Aria condizionata in tutti i locali, ed infissi in pv a doppio taglio termico. A pochi metri da MM PASTEUR ed MM LORETO e da scuole, supermercati, banche, farmacie, bar, ristoranti, pizzerie e molti altri servizi che offre la zona. Comodo per raggiungere il centro con la linea rossa. Via Padova, cambierà completamente aspetto con la riqualificazione presentata dal Comune di Milano, i lavori di riqualificazione vera e propria partiranno a fine estate e riguarderanno due chilometri di strada, ma prima verranno realizzati posti auto alternativi in alcune vie limitrofe. Nella nuova Via Padova saranno realizzati 230 nuovi alberi, marciapiedi più ampi e completamente rifatti, otto nuove piazze, 22 incroci messi in sicurezza, 35 attraversamenti pedonali che, in assenza di una pista ciclabile, consentirà comunque alle biciclette di muoversi in modo sicuro. Il progetto permetterà di rispondere alle necessità di una maggiore sicurezza stradale, di avere uno spazio urbano più fruibile e luoghi d'incontro grazie a piazze lungo la strada. Quanto vale la tua casa? Rivolgiti per una valutazione gratuita alla nostra agenzia affiliata Tecnocasa, i nostri professionisti sono a tua completa disposizione. Per qualsiasi informazione e/o per fissare un appuntamento senza impegno, contattare il nostro ufficio TECNOCASA STUDIO Padova 7 srl di Via Padova 41 al numero di telefono 02.83. 52.12. 82 oppure all'indirizzo mail Presso la nostra agenzia, è possibile su richiesta, grazie ai nostri professionisti della Kiron (società di mediazione creditizia del gruppo), ricevere una consulenza gratuita ed accedere ad un'ampia gamma di prodotti creditizi e assicurativi come: - Mutui prima, seconda casa e ristrutturazione; -Sostituzione o Surroga del Mutuo; -Cessioni del Quinto dello Stipendio o Pensione; -Consolidamento Debiti; -Prodotti Assicurativi per la Famiglia, ramo Danni e Vita. Seguici anche su Facebook o su Instagram, clicca ''mi piace'' sulla pagina Tecnocasa Nolo Ogni agenzia ha un proprio titolare ed e' autonoma - Le presenti informazioni non costituiscono elemento contrattuale.

Mostra tutto

Nelle vicinanze

Trasporto pubblico Trasporto pubblico
Pasteur
Pasteur
420 m
Rovereto
Rovereto
640 m
stazione di Milano Lambrate
stazione di Milano Lambrate
1,2 Km
Milano Centrale
Milano Centrale
1,5 Km
Via Venini Via Sauli
Via Venini Via Sauli
590 m
Ricariche auto elettriche Ricariche auto elettriche
U2 Supermercato Milano Vallazze | EnelX
730 m
A2A Isola Digitale Piazza Argentina
1,0 Km
A2A Pacini
1,2 Km
Becharge Milano Palestrina
1,2 Km
BeCharge Milano Piola
1,2 Km
Scuole Scuole
IIS Santa Caterina da Siena
230 m
Politecnico di Milano, Campus Mancinelli
280 m
Istituto Milano scuola paritaria
350 m
Scuole
450 m
Scuola primaria e secondaria di primo grado "Casa del Sole"
630 m
Farmacia Farmacia
Farmacia
30 m
Farmacia Dottor Berta
430 m
Farmacia Confalonieri
480 m
Lloyds Farmacia
540 m
Farmacia Bandi
590 m
Ospedali Ospedali
Istituto Clinico Città Studi
590 m
San Raffaele - Turro
1,2 Km
Istituto Neurologico Carlo Besta
1,6 Km
Poliambulatorio di via Don Orione
1,6 Km
Istituto Nazionale dei Tumori
1,8 Km
Supermercati Supermercati
Simply Market
100 m
Pam
430 m
Simply City Market
490 m
In'S mercato
520 m
Ok Sigma
690 m
Negozi Negozi
La Rose de Tunis
80 m
Cool Forest
100 m
PERÚ Alimenta
140 m
Fidel's
170 m
Dany Confezioni
230 m
Bar Bar
Salumeria del design
70 m
Durante
80 m
Porpora
480 m
NoLoSo
510 m
Amico Bar Tabacchi
530 m
Ristoranti Ristoranti
Pizzeria Partenopea
80 m
Shizen
110 m
Jin Yuan
120 m
Coo Coo
130 m
Capo Verde
140 m
Mostra tutto

Caratteristiche

Rif.:
61152704
Piano:
5 di 8 con ascensore (Piano alto)
Balconi:
2
Camere da letto:
2
Arredamento:
Parziale
Condizionamento:
Autonomo
Mostra tutto
Prezzo Prezzo
€ 389.000
Rata mutuo Rata mutuo
€ 1.836 / mese
Proponi il tuo prezzoProponi il tuo prezzo

Classe Energetica

E
E
E
E
E
E
E
E
E
EP invernale del fabbricato:
EP estiva del fabbricato:
Anno di costruzione:
1967
Riscaldamento:
Centralizzato
Tipo impianto:
A radiatori
Tipo alimentazione:
Metano

Ti interessa visionare l'immobile?

Fissa un appuntamento  Fissa un appuntamento

Richiedi informazioni

Clicca su Leggi per aprire l'informativa
* Questi campi sono obbligatori

Calcola il tuo mutuo

Semplice e senza impegno
Anticipo

( % )
Mutuo

( % )

pochi semplici passi

inserisci i tuoi dati
Questionario completato
Grazie per aver richiesto un appuntamento senza impegno con un nostro Consulente del Credito e Assicurativo.

Hai inserito correttamente tutti i dati necessari e a breve riceverai una e-mail con un link da convalidare per inviare i tuoi dati.
Affiliato
Studio Padova 7 Srl
Via Padova, 41 20123 Milano (MI)

Il nostro staff


  • Donato Mazzeo
    Affiliato

  • Renato Antonio Pallotta
    Responsabile
Via Padova, 41 20123 Milano (MI)
Zona: Loreto-Padova-Pasteur
Mostra su mappa
Affiliato
Studio Padova 7 Srl
Via Padova, 41 20123 Milano (MI)

2026 Tecnocasa Franchising S.p.A. - P. IVA 08365160152 - Via Monte Bianco 60/A 20089 Rozzano (MI). Ogni agenzia ha un proprio titolare ed è autonoma. Privacy policy | Policy utilizzo | Cookie policy