Bilocale in vendita

Milano, Via Padova - Padova Pasteur
€ 225.000
2 locali 2 locali
40 Mq 40 Mq
1 bagno 1 bagno

Bilocale in vendita

Milano, Via Padova - Padova Pasteur

Descrizione annuncio

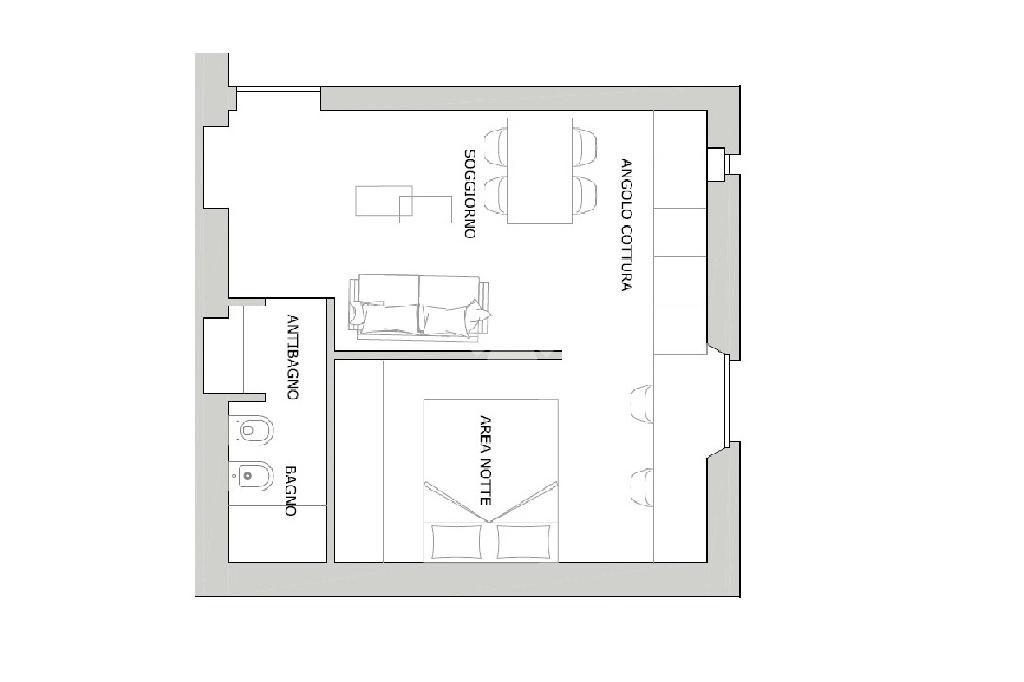
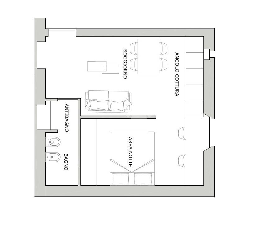
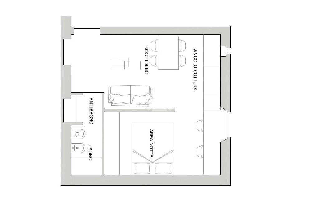
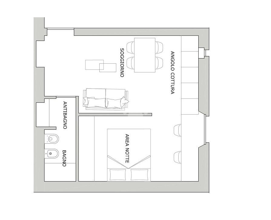
PARCO TROTTER -Via PADOVA 76 - In stabile d' epoca sito al terzo piano SENZA ascensore,Ampio Monolocale/ Bilocale completamente ristrutturato a nuovo, con impianti certificati, gres porcellato ed aria condizionata composto da ingresso susoggiorno con angolo cottura , anti bagno, bagno e locale camera/studio. Possibilità acquisto Padova, cambierà completamente aspetto con la riqualificazione presentata dal Comune di Milano, i lavori di riqualificazione vera e propria partiranno a fine estate e riguarderanno due chilometri di strada, ma prima verranno realizzati posti auto alternativi in alcune vie nuova Via Padova saranno realizzati 230 nuovi alberi, marciapiedi più ampi e completamente rifatti, otto nuove piazze, 22 incroci messi in sicurezza, 35 attraversamenti pedonali che, in assenza di una pista ciclabile, consentirà comunque alle biciclette di muoversi in modo sicuro. Il progetto permetterà di rispondere alle necessità di una maggiore sicurezza stradale, di avere uno spazio urbano più fruibile e luoghi d'incontro grazie a piazze lungo la Loreto è pronto a cambiare volto. Si chiama Loc, Loreto Open Community, il progetto di Ceetrus Nhood con Arcadis Italia e altri, che si è aggiudicato la gara per la riqualificazione nell'ambito del concorso internazionale Reinventing Cities. Il risultato è una grande 'agorà verde' ribassata, di 10.000 metri quadrati, che si svilupperà su tre livelli. Un risultato ottenuto con lo spostamento ai margini del traffico automobilistico che lascia il 69% della superficie attuale ai pedoni e alle biciclette. La sfida è stata quella di recuperare lo spazio pubblico centrale, oggi inaccessibile, trasformandolo in un'area destinata alla vita vale la tua casa? Rivolgiti per una valutazione gratuita alla nostra agenzia affiliata Tecnocasa, i nostri professionisti sono a tua completa qualsiasi informazione e/o per fissare un appuntamento senza impegno, contattare il nostro ufficio TECNOCASA STUDIO Padova 7 srl di Via Padova 41 al numero di telefono 02.83. 52.12. 82 oppure all'indirizzo mail Presso la nostra agenzia, è possibile su richiesta, grazie ai nostri professionisti della Kiron (società di mediazione creditizia del gruppo), ricevere una consulenza gratuita ed accedere ad un'ampia gamma di prodotti creditizi e assicurativi come: - Mutui prima, seconda casa e ristrutturazione; -Sostituzione o Surroga del Mutuo; -Cessioni del Quinto dello Stipendio o Pensione; -Consolidamento Debiti; -Prodotti Assicurativi per la Famiglia, ramo Danni e Vita. Seguici anche su Facebook o su Instagram, clicca ''mi piace'' sulla pagina Tecnocasa Nolo Ogni agenzia ha un proprio titolare ed e' autonoma - Le presenti informazioni non costituiscono elemento contrattuale.

Mostra tutto

Nelle vicinanze

Trasporto pubblico Trasporto pubblico
Rovereto
Rovereto
550 m
Pasteur
Pasteur
570 m
stazione di Milano Lambrate
stazione di Milano Lambrate
1,3 Km
stazione di Cimiano
stazione di Cimiano
1,6 Km
Piazza Morbegno
Piazza Morbegno
650 m
Ricariche auto elettriche Ricariche auto elettriche
U2 Supermercato Milano Vallazze | EnelX
870 m
A2A Pacini
1,2 Km
A2A Isola Digitale Piazza Argentina
1,2 Km
Becharge Milano Palestrina
1,4 Km
BeCharge Milano Piola
1,4 Km
Scuole Scuole
Politecnico di Milano, Campus Mancinelli
300 m
Scuola primaria e secondaria di primo grado "Casa del Sole"
430 m
IIS Santa Caterina da Siena
460 m
Scuola secondaria di primo grado Rinaldi
490 m
Istituto Milano scuola paritaria
540 m
Farmacia Farmacia
Farmacia
220 m
Farmacia Confalonieri
490 m
Farmacia Bandi
510 m
Farmacia Dottor Berta
550 m
Lloyds Farmacia
710 m
Ospedali Ospedali
Istituto Clinico Città Studi
770 m
San Raffaele - Turro
950 m
Poliambulatorio di via Don Orione
1,4 Km
Istituto Neurologico Carlo Besta
1,7 Km
Polo riabilitativo Istituto Gaetano Pini
1,7 Km
Supermercati Supermercati
Simply Market
150 m
In'S mercato
300 m
Ok Sigma
570 m
Pam
650 m
Unes
670 m
Negozi Negozi
La Rose de Tunis
260 m
Cool Forest
290 m
PERÚ Alimenta
300 m
Dany Confezioni
330 m
Fidel's
340 m
Bar Bar
Salumeria del design
280 m
Durante
280 m
Amico Bar Tabacchi
460 m
NoLoSo
540 m
Ghe Pensi Mi
640 m
Ristoranti Ristoranti
Ristoranti
140 m
Jin Yuan
150 m
Capo Verde
180 m
Pizzeria Partenopea
270 m
Shizen
300 m
Mostra tutto

Caratteristiche

Rif.:
61118931
Piano:
3 di 5 (Piano medio)
Camere da letto:
1
Arredamento:
Assente
Condizionamento:
Autonomo
Ascensore:
No
Mostra tutto
Prezzo Prezzo
€ 225.000
Rata mutuo Rata mutuo
€ 1.037 / mese
Proponi il tuo prezzoProponi il tuo prezzo

Classe Energetica

F
F
F
F
F
F
F
F
F
EP invernale del fabbricato:
EP estiva del fabbricato:
Anno di costruzione:
1930
Riscaldamento:
Autonomo
Tipo impianto:
Ad aria
Tipo alimentazione:
Aria

Ti interessa visionare l'immobile?

Fissa un appuntamento  Fissa un appuntamento

Richiedi informazioni

* Questi campi sono obbligatori

Calcola il tuo mutuo

Semplice e senza impegno
Anticipo

( % )
Mutuo

( % )

pochi semplici passi

inserisci i tuoi dati
Questionario completato
Grazie per aver richiesto un appuntamento senza impegno con un nostro Consulente del Credito e Assicurativo.

Hai inserito correttamente tutti i dati necessari e a breve riceverai una e-mail con un link da convalidare per inviare i tuoi dati.
Affiliato
Studio Padova 7 Srl
Via Padova, 41 20123 Milano (MI)

Il nostro staff


  • Donato Mazzeo
    Affiliato

  • Renato Antonio Pallotta
    Responsabile

  • Alessio Aranciotta
    Collaboratore
Via Padova, 41 20123 Milano (MI)
Zona: Loreto-Padova-Pasteur
Mostra su mappa
Affiliato
Studio Padova 7 Srl
Via Padova, 41 20123 Milano (MI)

2025 Tecnocasa Franchising S.p.A. - P. IVA 08365160152 - Via Monte Bianco 60/A 20089 Rozzano (MI). Ogni agenzia ha un proprio titolare ed è autonoma. Privacy policy | Policy utilizzo | Cookie policy